中環置地核心望雲售楼处电线上海宝山中環置地
发布时间:
2025-03-12 16:45
上海市(Shanghai),简称“沪”,别号“申”,是中华人平易近国曲辖市, [38]位于中国东部,地处长江入海口, [162]境域北界长江,东濒东海,西接江苏省和浙江省,总面积6340。5平方千米, [38]下辖16个区。 [37]截至2022岁暮,全市常住生齿2475。89万人, [191]上海话属吴语方言太湖片。 [146]市驻地上海市黄浦区人平易近大道200号。 [160]上海市地处长江三角洲冲积平原,地势低平, [38] [44]属带季风性天气,最大河道为黄浦江。 [46] [192]早正在6000年前,境域内就已有人类糊口。唐天宝十年(公元751年),上海始有第一个建置县。至元二十九年(公元1292年),元朝核准设立上海县,标记着上海建城之始。曲到1949年5月,上海市被列为地方曲辖市。 [41]
上海市是中国国际经济、金融、商业、航运、科技立异核心, [162]第三财产为其支柱财产,金融安全业、消息办事业、旅逛业、房地财产和其他新兴办事业, [30]成为拉动经济增加“自动力”。 [179]2024年,上海市实现地域出产总值53926。71亿元,按不变价钱计较,比上年增加5。0%。 [227] [229]上海市是国度汗青文假名城,具有浩繁的汗青奇迹,有着非遗项目1114个、 [110]文物单元267处, [116]包罗沪剧、 [115]江南丝竹、 [112]兴圣教寺塔等。 [124]别的,上海市也是中国次要旅逛城市之一, [1]有着国度级旅逛景区138个,包罗东方明珠电视塔、上海野活泼物园等。5#、6#总高8层,无架空层,其余楼栋1层均有架空;9#、10#总高17F,其余楼栋总高22-26F;
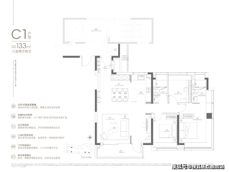
据悉,中環置地核心·望雲首期将推约108-165㎡3-4房,共计160套房源,均价67729元/㎡,估计将于近期认购!产物方面,比拟一期润府,望雲的户型设想可谓一脉相承,切中购房者“痛点”;正在室内拆修上的质量呈现,其审美也获得了进一步提拔。108㎡的入门级三房,起步门槛比拟润府提高不少。这个户型,入户玄关收纳、双开间的阳台、广大的U型厨房,和套房从卧带步入式衣帽间+全景式飘窗,是比力凸起的亮点;
售楼处电线㎡的进阶款,同样的三房两厅两卫,大面宽横厅、半式厨房设置岛台,加上从卧L型飘窗,再一次验证了华润置地豪宅化的产物思。近日中寰置地核心·望雲了165㎡样板间,楼典实地参不雅感触感染一番下来,整个户型动静分区的结构空间感很出众,人道化收纳设想细节良多,几乎每个房间都做了开窗面极大的飘窗,别的,拆标也正在润府的根本上升级了不少。
起首推开入户门,映入视线的是LDKB一体化客餐厅,家庭的焦点勾当区域,整个户型动静分区的结构一目了然,无走廊设想,空间操纵率极高,走下来显得十分敞阔。步入客堂,整面天然色的岩板墙面顺延茶青色岩板打底展开,躲藏式灯带正在弧形吊顶里透出温暖的光晕。
沙发布景墙用连纹的岩板,我们正在地面选择了连纹的淡色大砖,搭配上红色丝绒材质的单椅,以及大面积的木饰面,这些材料通过巧妙的混搭取组合,提拔了空间的奢华感。将客堂后方的空间打开做为禅意茶馆,正在快节拍的都会糊口中,为我们栖身者斥地一处具有东方意境的魂灵对话空间;正在全屋的梁的处置上,我们设想都选择了刷黑漆去包裹,不做弱化处置,反而凸起它的存正在,别具一格的设想让空间更有特色。
我们将原有的厨房取餐厅打通,整个做厨归并,动线上以西餐岛台、餐桌皆构成洄逛动线,虽然中厨的操做台面是一字型结构,但我们设想师正在餐边柜中内嵌了我们的电器,全体的利用上很是便当,西餐岛台做为我们台面的弥补。从配色上看很是的合适轻奢中奢华的特点,斗胆而强烈热闹的餐桌椅配色、制型新颖的金属吊灯,同时空气灯带的点缀,让整个空间都分发着高级、舒服的感受。
我们将原有的客卫改成了家政间,这个空间集收纳、洗衣晾晒为一体,满脚我们一家人的利用,如许就能够避免我们公区晾晒不美妙的问题。
从卧套间采用酒店式情景设想:步入式衣帽间全数用茶色玻璃柜门,便利我们业从收纳和拿取;睡眠区布景墙以护墙板为从,取我们棉麻材质的床品构成对比,让整个空间构成张弛有度的放松感。
从卫全体借用部门卧室面积进行扩大,做成四分手的设想,全体的模式也参考了酒店的结构,墙地面用一深一浅的口角色岩板搭配,卵形浴缸给业从供给满满的幸福感,让洗澡成为每日的感官典礼。
儿童房的设想上以简约为从,跟从公区分歧的无从灯设想,为了美妙,我们设想师设想了加长风口,做简单的板带线,让吊顶看起来对称;正在空间内的配色上以简练的米白色为从,加上橙色点缀,添加童趣。好比,厨房配了珍珠白吊柜、三组抽屉式拉篮合理搭配,调料架收纳、大容量踢脚抽、洁净用品收纳区,米面粮油、碗碟刀叉都可完满现身。此外,像私享的入户梯厅能够做家庭小型储藏库;沙发后面的空间能够摆放大体量壁柜;大面宽阳台两侧也可做为定制储藏空间;此中从卧的270°转角飘窗就有约5。7m²,通过取外立面的连系,间接做了打扮台和储物柜,拓展了飘窗的适用性。客餐厅净面宽约5。45m、进深约6。85m摆布。北侧是厨房和家政间,南侧是净面宽约5m的阳台。
从卧转角落地窗+飘窗,也算常少见的了。净面宽约3。6m,不算进门的衣柜,进深大约5。7m摆布。按照测算,能够放置宽约2m的床+2个床头柜(宽度约45cm/个)是能够的。!做为宝山4个沉点成长区域之一,南大同时也是上海北部最大的待开辟区域之一。待开辟,也就意味着尚未建成!但不管是从规划仍是来看,南大都是上海少有的能兼顾财产和栖身的板块之一。起首南大被称为核心城区一块不成多得的“大衣料子”,总开辟体量约540万方,包含两大TOD及约250米天际地标,规划绿地面积占比高达43%(来历:上海宝山)!
和其他区域边拆边建式的零星开辟分歧,而是同一拆改后再集中规划,如许的开辟形式,也决定了这里的规划从一起头就会相对完整且高能级。
而除此之外,前面也提到,南大板块规划的绿地面积占比高达43%。特色公园40余个,人均绿色面积约39。38㎡,是上海人均绿地面积的约3倍。将来可能会是一个超越碧云的大型生态栖身区。(数据来历:上海宝山区官网)
讲实,但正在上海的中环附近,近乎预留了一半的地盘给到绿化,给到糊口,这算的上是一件费劲不奉迎的事儿。但南大有末路人的生态,并且仍是高规格。中环置地核心·望雲位于南大聪慧城C位,周边糊口配套很是成熟且距离相对较近,将来跟着板块规划逐渐兑现,地段价值将会愈加凸显。
北侧丰翔、西侧祁健、东侧汇丰已建成通车,07-01地块南侧丰皓(祁健-工学)打算2024年开工扶植。项目距离15号线丰翔坐步行可达,日常出行很是便利。
项目本身就是一个自带贸易的TOD,华润置地规划以万象系列融汇轻奢时髦、休闲糊口、活动潮水等多元业态,打制北中环“都会贸易新旗舰。除了将来的万象系贸易(规划中),周边还有经纬汇、聚丰购物广场、上坤城市广场、山姆会员店等,购物仍是比力便利的。医疗资本方面:项目周边有两大三甲级病院为健康保驾护航,本别是:仁济病院宝山分院和华山病院(宝山院区)。正在房产市场中,贷款无疑是毗连购房者取心仪房产的主要桥梁。无论是初次购房的新手,仍是经验丰硕的投资者,对于房产贷款的领会和把握都至关主要。本文将深切切磋房产学问中的贷款干货,从贷款的根基概念、类型、申请流程到还款体例,全方位解析房产贷款的奥妙。
1。 贷款额度:贷款额度是指银行情愿供给给购房者的最高贷款金额,信用记实、房产价值等要素分析评估。2。 贷款刻日:贷款刻日是指购房者需要正在多长时间内还清贷款。一般来说,房产贷款的刻日较长,能够达到10年、20年以至30年,这有帮于购房者分离还款压力。3。 贷款利率:贷款利率是购房者需方法取给银行的贷款成本,它凡是以年化利率暗示。贷款利率的凹凸间接影响购房者的还款金额和还款压力。4。 还款体例:还款体例是指购房者若何向银行贷款本金和利钱。常见的还款体例包罗等额本息还款法、等额本金还款法等。1。 贸易贷款:贸易贷款是指购房者向贸易银行等金融机构申请的贷款,它凡是用于采办商品房等可买卖的房产。贸易贷款的利率、刻日和还款体例等由银行按照市场环境和购房者前提自从确定。2。 公积金贷款:公积金贷款是指购房者向住房公积金办理核心申请的贷款,它凡是用于采办自住住房。公积金贷款的利率较低,且贷款额度取购房者的公积金缴存额度和缴存时间等要素相关。3。 组合贷款:组合贷款是指购房者同时申请贸易贷款和公积金贷款,将两种贷款体例连系利用以满脚购房需求。组合贷款连系了贸易贷款和公积金贷款的长处,既可以或许享受公积金贷款的低利率,又可以或许获得贸易贷款较高的贷款额度。1。 领会本人的信用情况:正在申请贷款前,购房者需要领会本人的信用情况,包罗信用演讲中的信用评分、过期记实等。信用情况是银行评估购房者还款能力和信用风险的主要根据。2。 评估本人的还款能力:购房者需要按照本人的收入、收入等环境,评估本人能否有脚够的还款能力来承担贷款。银行正在审批贷款时,也会沉点调查购房者的还款能力。3。 选择合适的贷款产物和银行:购房者需要按照本人的需乞降前提,选择合适的贷款产物和银行。分歧的银行和贷款产物可能有分歧的利率、刻日、还款体例等前提,购房者需要细心比力和选择。1。 提交贷款申请:购房者需要向选择的银行提交贷款申请,并供给相关的申请材料,如身份证、收入证明、房产证明等。2。 银行审批:银行正在收到贷款申请后,会对购房者的信用情况、还款能力等进行审批。审批通事后,银行会取购房者签定贷款合同。3。 打点典质登记:购房者需要取银行一路打点房产典质登记手续,将所购房产典质给银行做为贷款的。4。 银行放款:正在典质登记手续打点完成后,银行会将贷款款子间接划入售房单元正在该行的账户上,购房者从而完成购房买卖。1。 供给实正在材料:购房者正在申请贷款时,需要供给实正在、精确的申请材料。若是供给虚假材料,一旦被银行发觉,可能会导致贷款申请被,以至可能面对法令义务。2。 留意贷款额度取刻日:购房者需要按照本人的经济能力和还款打算,合理选择贷款额度和刻日。过高的贷款额度或过长的贷款刻日可能会添加购房者的还款压力。3。 领会贷款费用:购房者正在申请贷款时,需要领会贷款过程中可能发生的各类费用,如评估费、典质登记费、安全费等。这些费用可能会添加购房者的成本,需要提前做好预算和预备。
3。 其他还款体例:除了等额本息还款法和等额本金还款法外,还有一些银行供给其他还款体例,如按季还息到期还本、一次性还本付息等。购房者能够按照本人的需乞降前提选择合适的还款体例。1。 提前还款的利:提前还款能够削减购房者领取的利钱总额,缩短贷款刻日,提前实现无债一身轻的方针。对于收入添加或资金丰裕的购房者来说,提前还款是一种不错的选择。2。 提前还款的弊:提前还款可能会添加购房者的短期资金压力,由于购房者需要一次性领取较多的本金。此外,一些银行可能会对提前还款收取违约金或提前还款的次数和金额。1。 按时还款:购房者需要按照贷款合同商定的还款体例和还款日期按时还款。过期还款不只会发生罚息和畅纳金,还会影响购房者的信用记实。2。 关心利率变化:贷款利率是购房者需要关心的主要目标之一。若是市场利率发生变化,购房者需要及时领会本人的贷款利率能否也会发生变化,并提前做好还款打算调整。3。 保留还款凭证:购房者需要保留好每次还款的凭证,以便正在需要时查询和查对还款记实。若是发生还款胶葛或争议,还款凭证能够做为主要的。利率风险是指贷款利率变化可能给购房者带来的风险。若是市场利率上升,购房者的还款金额也会响应添加,从而添加购房者的还款压力。为了防备利率风险,购房者能够选择固定利率贷款或选择具有益率调零件制的贷款产物。信用风险是指购房者因信用情况恶化而无法按时贷款的风险。为了防备信用风险,购房者需要连结优良的信用记实,按时还款,避免过期和不良信用记实的发生。同时,购房者还能够选择采办信用安全等体例来降低信用风险。房产价值波动风险是指购房者所购房产的价值因市场变化而下降的风险。若是房产价值下降,购房者的典质物价值也会响应下降,从而添加购房者的贷款风险。为了防备房产价值波动风险,购房者需要选择地舆优胜、配套设备完美、具有升值潜力的房产进行投资。除了上述风险外,购房者还需要关心其他可能影响贷款平安的风险峻素,如政策变化、经济等。购房者需要亲近关心市场动态和政策变化,及时调整本人的投资策略和还款打算。1。 提高贷款额度:购房者能够通过提高首付比例、供给额外的典质物某人等体例来提高贷款额度。同时,购房者还能够选择诺言优良的银行和贷款产物来提高贷款额度。2。 降低贷款利率:购房者能够通过提高信用评分、选择具有益率优惠的贷款产物或取银行协商等体例来降低贷款利率。降低贷款利率能够削减购房者的还款金额和还款压力。3。 优化还款打算:购房者能够按照本人的经济能力和还款打算,合理选择还款体例和还款刻日。同时,购房者还能够选择提前还款或调整还款打算等体例来优化还款打算。破解:贷款额度并非越高越好。过高的贷款额度会添加购房者的还款压力和经济承担,以至可能导致购房者无法按时还款。购房者需要按照本人的经济能力和还款打算合理选择贷款额度。破解:贷款刻日并非越长越好。过长的贷款刻日虽然能够降低每月还款金额,但会添加购房者领取的总利钱金额。购房者需要按照本人的经济能力和还款打算合理选择贷款刻日。破解:提前还款并非必然划算。对于选择固定利率贷款或曾经还款较长时间的购房者来说,提前还款可能无法获得较着的利钱节流结果。购房者需要按照本人的贷款产物和还款打算来判断提前还款能否划算。房产贷款做为购房过程中的主要环节,对于购房者来说具有至关主要的意义。通过本文的切磋,相信读者曾经对房产贷款的根基概念、类型、申请流程、还款体例以及风险等方面有了更深切的领会和认识。正在将来的购房过程中,但愿读者可以或许按照本人的需乞降前提选择合适的贷款产物和银行,合理规划本人的还款打算,实现购房胡想的同时降低贷款风险。同时,也但愿读者可以或许连结和思虑,避免陷入贷款误区和圈套,为本人的财政平安和将来糊口保驾护航。
